新金宝

深圳飞墨科技有限公司
宣布时间:2022.09.23
浏览次数:1685 次

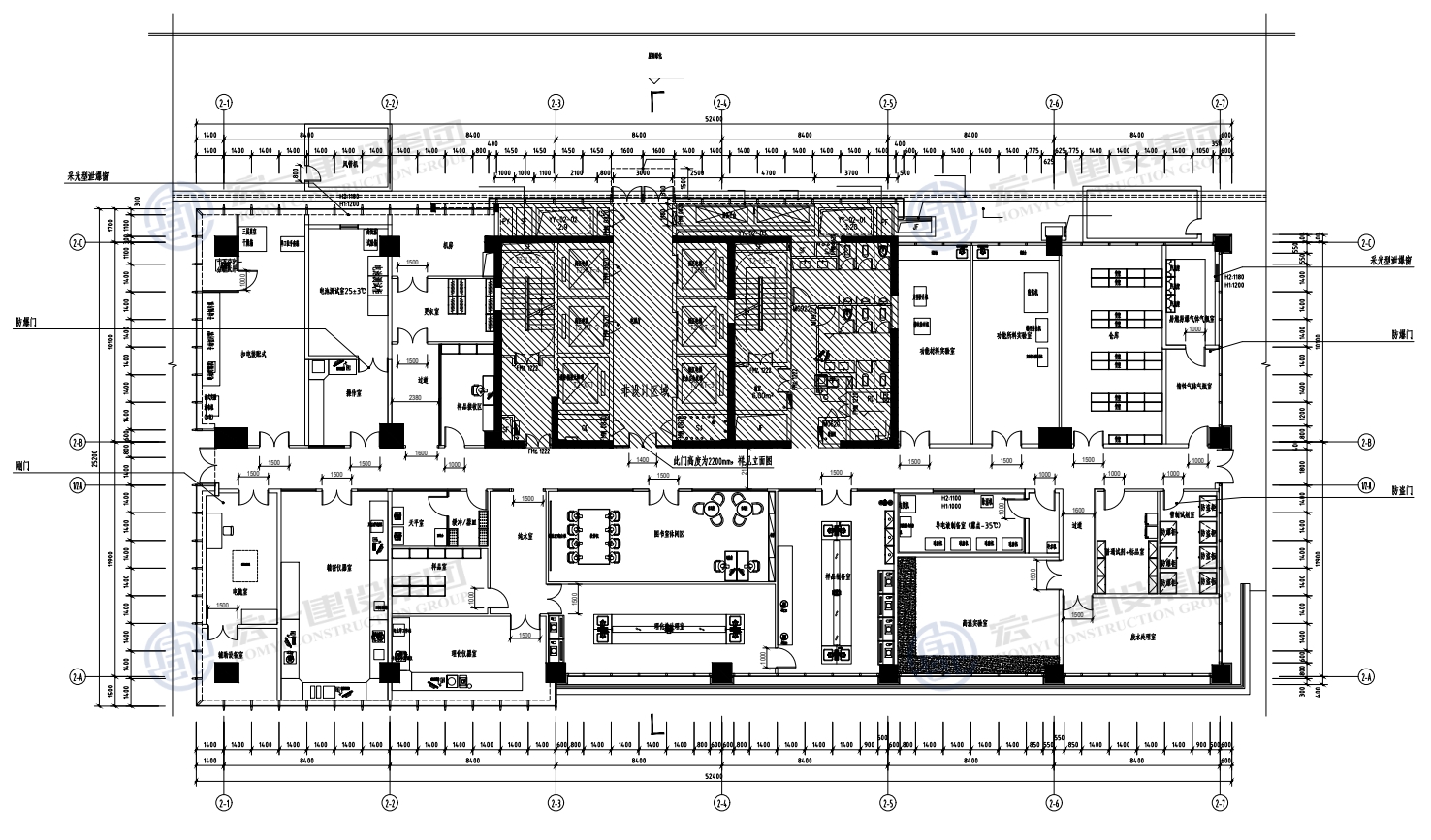
深圳市飞墨科技有限公司建设于2019年, ,,是一家专注于碳纳米管, ,,碳纳米管导电剂, ,,碳纳米管复合质料的研发、生产、销售的科技立异型企业。。深圳新金宝科技集团与飞墨公司签署实验室施工条约, ,,飞墨实验室设计的领域有化学和物理领域。。


项目面积:2500㎡

所在:深圳

签约时间:2022年


新金宝(中国游)有限公司官网

新金宝(中国游)有限公司官网

Copyright ? 2026 深圳新金宝科技集团 深圳新金宝实验科技有限公司      粤ICP备2021038609号
【网站地图】【sitemap】