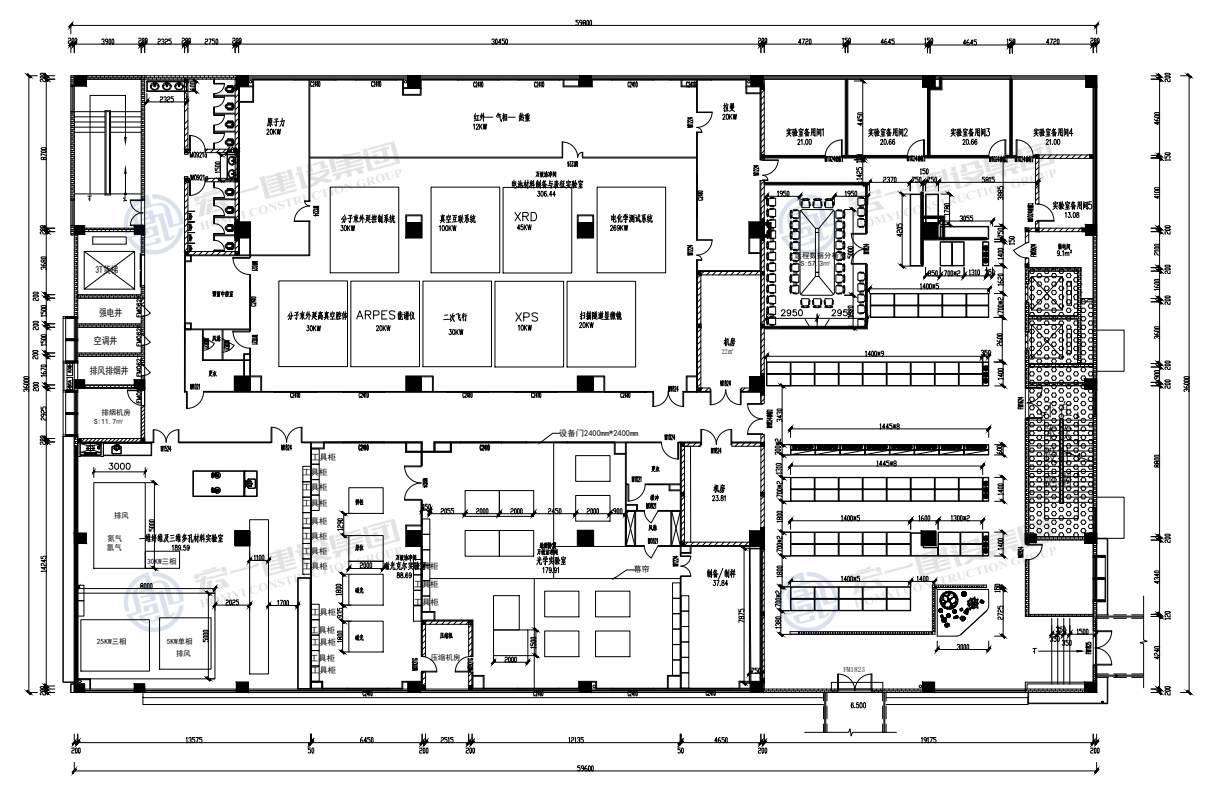
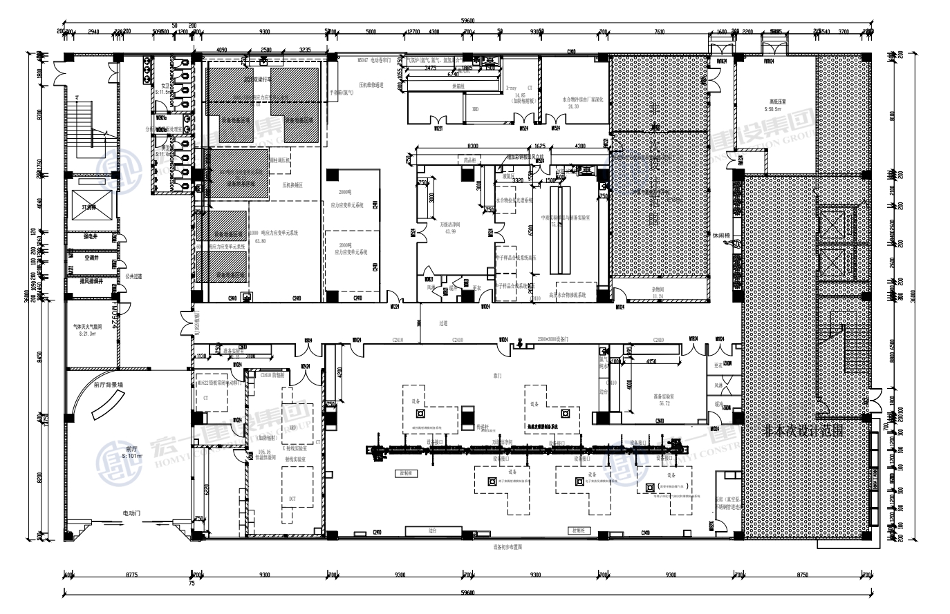
南方科技大学(South University of Science and Technology of China),,,,,简称“南科大”,,,,,是国家高等教育综合刷新试验校,,,,,是由广东省向导和治理的整日制公办通俗高等学校,,,,,是深圳市开办的一所立异型大学。。。。。深圳新金宝建设集团与南方科技大学签署实验室设计与施工条约,,,,,为南方科技大学的质料基因实验室。。。。。该实验室涉及质料的力学、物理和化学领域。。。。。
2022年5月-7月,,,,,新金宝集团与南方科技大学先后签署了质料基因组大科学装置平台暂时实验用地配套基础设施建设刷新项目与前沿生物手艺研究院实验室项目相助协议。。。。。南方科技大学与我司的二度签约,,,,,不但进一步牢靠了我司在与大型重点院校、医院、政府等单位相助时的竞争优势,,,,,同时为我司蓬勃生长积累了雄厚的潜力动能。。。。。
项目面积:5100㎡
所在:深圳
签约时间:2022年






