新金宝

霁因研究院
宣布时间:2022.03.13
浏览次数:1394 次

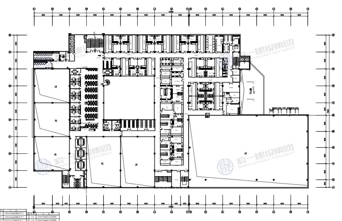
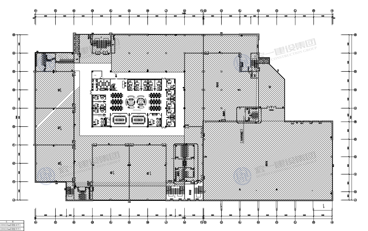
苏州霁因研究院为苏州市政府重点打造的苏州市医药孵化平台。。。深圳新金宝建设集团与苏州霁因研究院签署实验室施工条约,,,,,新金宝集团凭证苏州市政府引进的高新手艺专家,,,,,为其打造十几个医药孵化平台,,,,,为苏州市的科研孝顺一份实力。。。


项目面积:4800㎡

所在:苏州

签约时间:2022年



新金宝(中国游)有限公司官网新金宝(中国游)有限公司官网

Copyright ? 2026 深圳新金宝科技集团 深圳新金宝实验科技有限公司      粤ICP备2021038609号
【网站地图】【sitemap】