新金宝

华先医药实验大楼
宣布时间:2021.03.18
浏览次数:1667 次

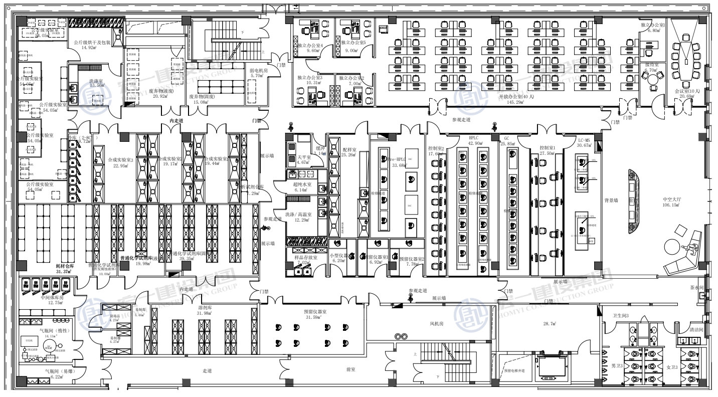
深圳市华先医药科技有限公司实验室以研发化学药物为主 ,,,,研发的药物主要有秀芬酸钠、溴已新、西格列汀及其他质料药小试样品 ,,,,实验批次约为1000批/年 ,,,,该项目涵盖药物合成、药物理化检测等领域。。


项目面积: 12000㎡

所在:深圳

签约时间:2021年3月


新金宝(中国游)有限公司官网

Copyright ? 2026 深圳新金宝科技集团 深圳新金宝实验科技有限公司      粤ICP备2021038609号
【网站地图】【sitemap】