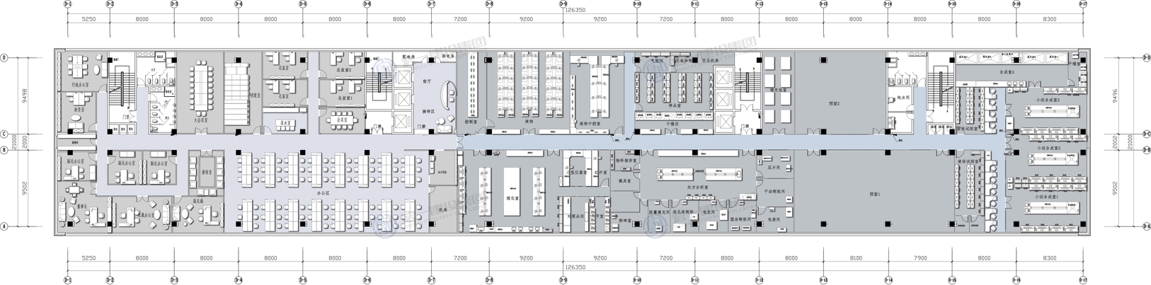
新金宝与广东众生药业股份公司实验室签署设计条约,,该项目主要内容是实验室妄想设计。。。广东众生药业股份公司实验室面积约3000平方米,,涵盖药物理化检测、处方剖析、药物合成等领域。。。
项目面积:3000㎡
所在:深圳
签约时间:2020年8月